Collegeville, PA 19426

3,625 SQ.FT. 4 Bedrooms 2.5 Bathrooms 3 Car Garage
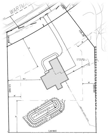
Approximate 1.14 Acres Price $1,100,000
First Floor












Perkiomen Valley
Natural Gas
Public Sewer
Well Water
Route 29
Route 363 Valley Forge Road
Route 422 Access
Route 73
476 Northeast Extension and 276 PA Turnpike
Available for Immediate Delivery
Nicole Bauder
Direct: 610-945-8396
Lou Marchegiano
Direct: 610-212-6380
Office: 610-489-2100
405 Wartman Road, Collegeville, Pennsylvania 19426, United States
No Open Houses at this Time
Photos, Renderings, Elevations, and/or Floor Plans may show Upgrades that are not included as Standard. Renderings, Elevations, Sizes and Dimensions are approximate and subject to field variations. All information is subject to errors, omissions, and price changes without notice or obligation. Information is reliable, but not guaranteed. Not drawn to scale.
Only homes with an active listing contract between Long & Foster Real Estate and DelGrippo Enterprises and/or LinMike LLC are advertised on this website.
Copyright © 2026 Nicole Bauder- All Rights Reserved.
We use cookies to analyze website traffic and optimize your website experience. By accepting our use of cookies, your data will be aggregated with all other user data.